
Layout 2017 of Mas Notre-Dame-de-Vie near Mougins where Pablo Picasso lived since 1961. The house was once owned by the Plunket family who gave the painter an Afghan hound called Kaboul as a moving-in present. The terrace is covered to give him space for two more large studios. His bedroom was on the top floor, the living rooms and studio on the ground floor. Mougins in the late Sixties/early Seventies. Te house was sold 2017 to a New Zealand real estate businessman in an auction with the starting price of €20.2 Mio
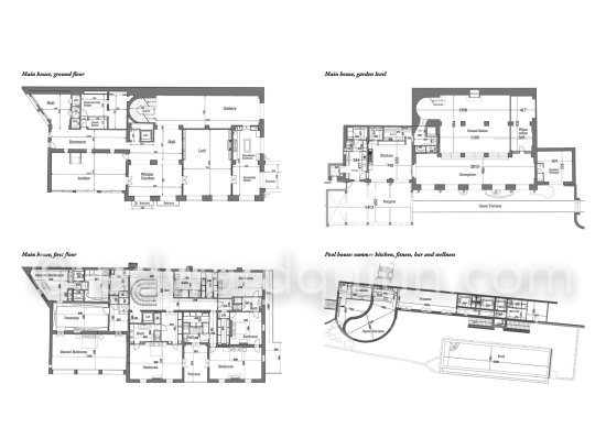
A set of floor plans reveals the layout of Mas Notre-Dame-de-Vie near Mougins, Pablo Picasso’s final residence from 1961. The main house is detailed across three levels: the ground floor, containing Picasso’s atelier, a gallery, and a winter garden; the garden level with its grand salon and orangerie; and the private first floor with the master suite and four other bedrooms. A separate, curvilinear pool house contains a summer kitchen, fitness area, and wellness suite with a hammam and sauna.
Artworks:
- Source: Sales brochure 2016/17, of residence365.com. copyright unknown
Abbreviations: see Bibliography
Keywords:
Filename:
pic670031.jpg
Photo Edward Quinn, © edwardquinn.com
Terms & Conditions
It was not always easy to identify specific personalities, artworks, places or dates. If you are able to provide identifications or find any errors, we kindly request that you contact us.
The description for this image (but not the title) was generated with the help of AI.